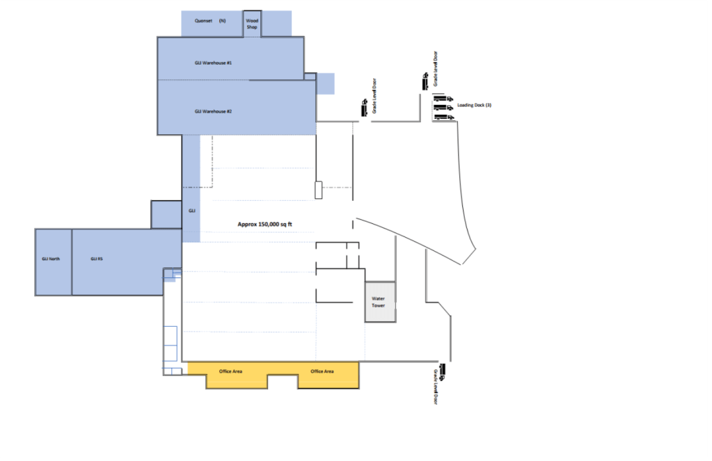
Located on 1999 Wildwood Ave, this property was formerly the corporate and industrial headquarters of Hayes Albion Corp. It features over 200,000 square feet of commercial space that is divisible to fit your needs, 16,000+ square feet of office space, and heavy industrial zoning.
- Heavy Industrial Zoning
- Opportunity Zone
- 12ft-14ft Clear Span Under Trusses
- Dock Access
- Competitively Priced
- Easily Subdivided
- Outdoor, Fenced Storage Available
- Indoor Security System Provided













You must be logged in to post a comment.